熱海サニーハイツ・7XX号室・ワンルームの物件詳細
熱海サニーハイツ・生活便利な駅徒歩圏MS
JR東海道本線「熱海」駅より徒歩約10分
[お問合せ番号] R5183
情報更新日:2026年05月17日 
JR東海道本線「熱海」駅より徒歩約10分の好立地に建つ大型リゾートマンションのご紹介です。お部屋は5階部分(呼称7階)約19.5帖の広さでゆったり使えるワンルームの間取り、リフォーム済みの綺麗な室内で単身利用の方やリゾート利用の方にもお勧めです。こちらのお部屋は手軽にご利用いただけるシャワールームのみの対応となり、足を伸ばしてゆったりと浸かりたい日には共用の温泉大浴場をご利用下さい。

-
-
熱海駅より徒歩約10分
通勤・通学等のアクセス良好
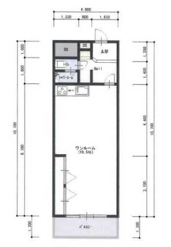
約19.5帖のワンルーム
充実した共用施設
最寄り駅 徒歩 住所 |
価格 |
面積 間取り |
種別 築年月 |
JR東海道本線(東京~熱海) 『熱海駅』 徒歩10分 静岡県熱海市海光町 |
1,250万円
|
専:42.8㎡
間取り:1R
|
中古マンション
1974年12月
|
0120-393019
【営業時間】9:30~19:00
【定休日】第2・第4火曜日・毎週水曜日
物件概要
| 物件名 |
熱海サニーハイツ・7XX号室・ワンルーム |
| 所在地 |
静岡県熱海市海光町  |
| 交通 |
JR東海道本線(東京~熱海) 『熱海駅』 徒歩10分
|
| 価格 |
1,250万円 |
| 坪単価 |
|
㎡単価 |
|
| その他料金 |
|
| 駐車場 |
|
| バイク置き場 |
|
駐輪場 |
|
| 間取り |
1R |
間取り詳細 |
間取図参照 |
専有面積 バルコニー面積 |
専:42.8㎡ バ:5.2㎡ |
| 種別/構造 |
中古マンション/SRC |
築年月 |
1974年12月 |
引渡し |
相談 |
| 現況 |
空 |
総戸数/販売戸数 |
440戸/1戸 |
土地権利 |
所有権 |
| 借地料 |
|
用途地域 |
第二種住居地域 |
地勢 |
|
| 階部分/階建て |
地上5階部分/地上13階・地下2階建て |
主要採光面 |
南西 |
| 設備 |
公営水道、都市ガス、公共下水
|
| 条件 |
|
| 備考 |
現況は地上15階建ての7階部分
共用施設:温泉大浴場、屋内・屋外プール(期間限定)等
駐車場1,300円/日、7,000円/月(空要確認)
水道料6,500円/月
温泉設備維持管理費2,000円/月
町内会費(防災活動費)100円/月
土砂災害(一部特別)警戒区域内 |
| 更新日 |
2026年05月17日 |
お問合せ番号 |
R5183 |
取引形態 |
仲介 |
| 管理組合 |
有 |
管理人状況 |
日勤 |
管理形態 |
管理会社に全部委託 |
| 管理費 |
12,160円 |
うち管理費消費税 |
|
修繕積立金 |
9,420円 |
| 管理会社名 |
双日ライフワン(株) |
※各種情報と現状に差異がある場合は、現状優先となります。